ENERTIA   HOMES No Fuel? No Power? .......No Problem

FONTANA - PASSIVE SOLAR


The Fontana is a passive solar home, built to use the benefits of thermal mass, but without the added benefits of the Enertia® envelope design.If you can’t have a basement, and don’t have a severe summer cooling need- a single shell Passive Solar home may be the answer.
MODEL
FT 2832
SQ.FT.
1196 + 896 bsmt
# BEDROOMS
3-4
The Fontana is a 1 1/2 story home with a screened porch and deck.
Stacks Image 114722
    Click to Enlarge
    Fontana - South
    Fontana - East
    Fontana - North
    Fontana - West
    Click to Enlarge
    Fontana - Main Level
    Fontana - Lower Level
    Fontana - Lower Level
    Click to Enlarge
    Fontana - South
    Fontana Dam - East
    This home is located in the mountains of Western, North Carolina, not too far from the Fontana Dam.
    Fontana - Southesast View
    Fontana - Southwest View
    Fontana - Northwest View
    Fontana - Northeast View
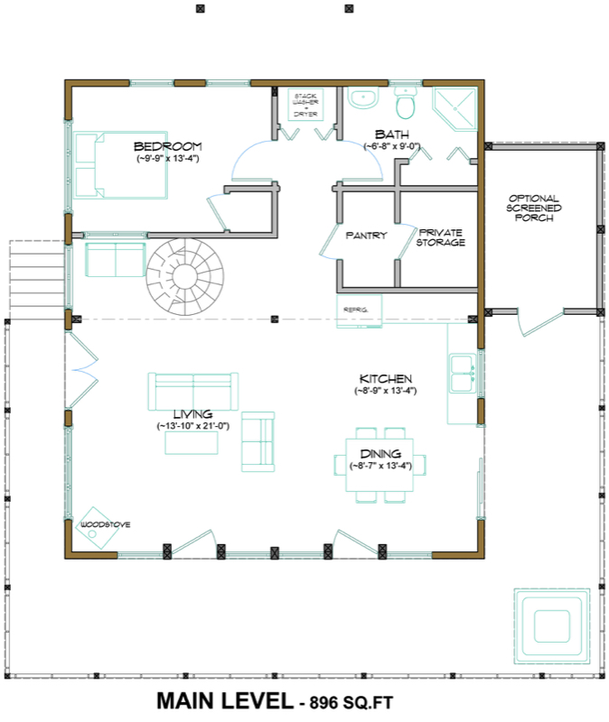
    Fontana - Main Level
    Fontana -Upper Level
    Fontana - Interior
    Fontana - Interior
    The client has the option of ordering perspective drawings to further visualize how the home will look and function. But, of course, what everyone is excited to see is the finished photos and the home itself.
    Fontana - Living Room
    Fontana - Kitchen
    Here the Kitchen, Living Room and Dining area are one open space with a cathedral ceiling and circular stairs going up to the loft and down to the recreation area. A bedroom and bath on this level are not shown.
    Fontana - Living Room
    Fontana - Loft
    Fontana - Loft
    This loft bedroom is overlooks the great room.
    Fontana - Rec Room
    Fontana - Rec Room
    The rec room and another bathroom are on the ground level.
    Fontana
    Fontana - Deck
    The homeowners spend happy hours in the hot tub looking at the incredible views.