ENERTIA   HOMES No Fuel? No Power? .......No Problem

BRANDYWINE


These are our most popular full-time basic homes. Brandywines have two stories with a main level master bedroom suite, and up to three bedrooms upstairs. There are two models at 1940 and 2324 sq.ft. plus full basements. With the stairway on the North, the sunspace wall can be partial to all-glass. Second story internal windows are aligned, according to your latitude, with the skylights for maximum light without heat loss. Optional south dormers can be added for architectural/visual interest and more daylight.
MODEL SQ.FT. # BEDROOMS
BR 2848 1940+1344 bsmt 3-4
BR 3248 2324+1536 bsmt 3-4


This Brandywine is in Colorado where the winters are cold, but sunny.
Stacks Image 22146
    Click to Enlarge
    Brandywine 2848 - South
    Brandywine 2848 - East
    Brandywine 2848 - North
    Brandywine 2848 - West
    Click to Enlarge
    Brandywine 2848 - Main Level
    Brandywine 2848 - Lower Level
    Brandywine 2848 - Lower Level
    Click to Enlarge
    Brandywine 3248 - South
    Brandywine 3248 - East
    Brandywine 3248 - North
    Brandywine 3248 - West
    Click to Enlarge
    Brandywine 3248 - Main Level
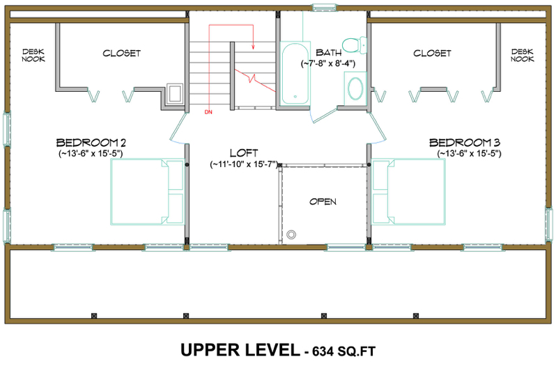
    Brandywine 3248 - Upper Level
    Brandywine 3248 - Lower Level