ENERTIA   HOMES No Fuel? No Power? .......No Problem

Extreme Version of the Blue Mountain 3244, Introducing BMX 3244+1

Stacks Image 199042
Blue Mountain Extreme Southwest View
First at the request of our New England Builder/Dealer, for his cold and often cloudy climate, we have been developing Extreme (Doubled East and West wall) versions of our standard models. More thermal mass means more stability,and isolating these walls with a sheet of foil-faced Thermax means the whole inner wall is thermal mass, with energy reflected back into the living space. A side benefit is warmer E / W interior walls, extreme quiet, and no wind intrusion.

Winter snow cover can double south facade energy-gain from the Albedo effect. Extreme versions add enough thermal mass to accept that extra energy. The extra course in the main level (indicated by the +1 in the model number) adds ceiling height and more thermal mass. You can order the N-S partition wall in the BMX 3244+1 as a solid timber option to get even more.
Weather
Blue Mountain Extreme Southwest View
Not in a Polar Vortex climate? Extremes are also viable in a mild climate as the foil surface prevents summer heat build-up on the Western Wall. The cavity provides a path for cables or conduit, simplifying wiring. In earthquake zones it provides a path for threaded rods, now required by Quake Zone building codes.
In a place subject to Hurricanes, or Tornados? The Extreme versions provide extra east/west strength to a structure already many times stronger than stick-framing, and a path for steel rods to tie down the roof panels- a load path al the way down to the heavy foundation, locked by the earth on wide footers that can be engineered up to a class 5 tornado.

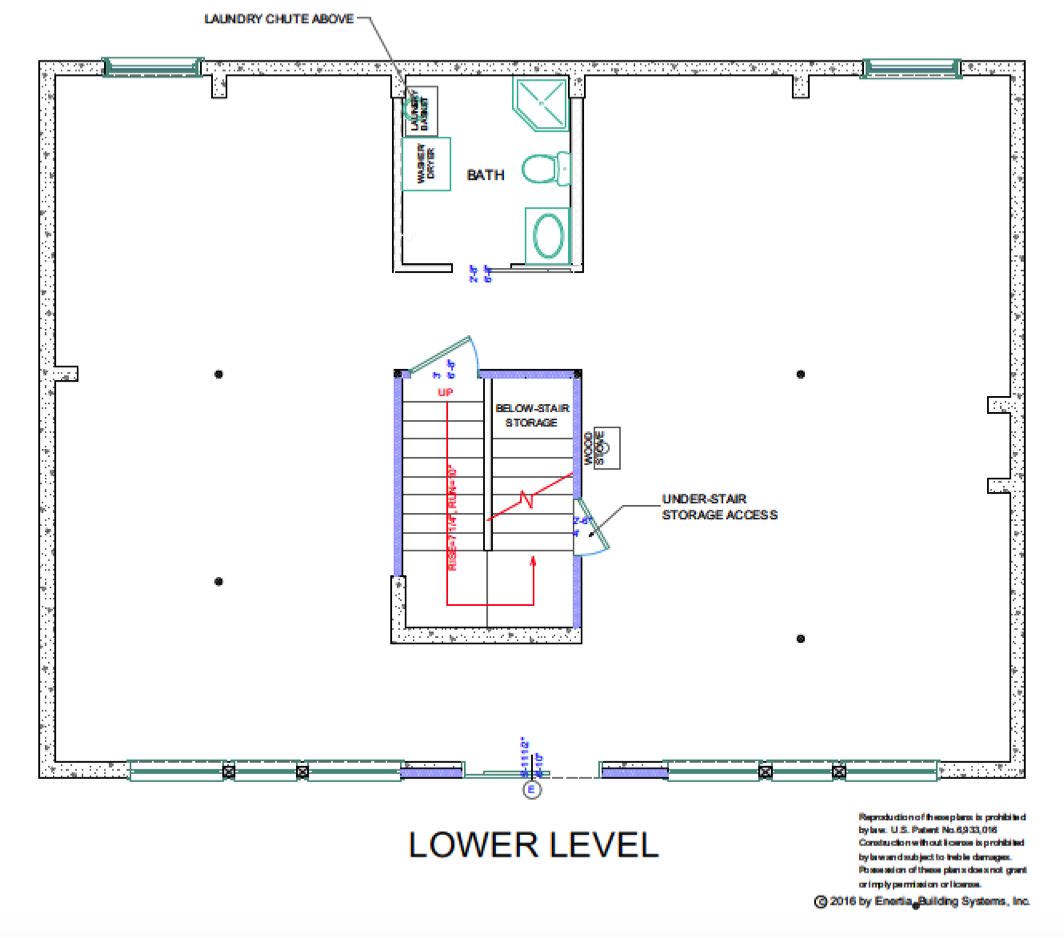
Floorplans for the BMX 3244+1

Weather
Blue Mountain Extreme Southwest View
Weather
The Lower Level, (Basement Foundation), is the same for both the the regular and the Extreme version of the Blue Mountain. As is the roof. So going to the extreme version only involves the Package.
Feedback from the extreme versions has been enthusiastic. Warmer walls, and just the look of substance and stability from the 12 inch deep windowsills which emphasize the thickness of the walls. And the deep windowsills are a favorite place for flowers, and cats.
Weather
Remember, the Enertia package is the double-shell structure, i.e. the “Engine” of the house. Your builder can add porches, decks, chimneys, extended overhangs and decorative entrances to create a Modern, Cape Cod, Victorian, or Hill Country Ranch style using this same “Engine” Our designers will draw the plans to represent your tastes and style and for the terrain of your property.