ENERTIA   HOMES No Fuel? No Power? .......No Problem

SOUTHERN PINES


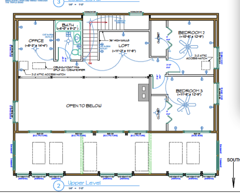
This home has the master suite isolated by a solid gluelam timber wall, and with its own entry off the sunspace, and with its own separate convection loop for independent temperature control. Based on the Great-room concept with open ceilings and a balcony loft, Southern Pines can be finished as a 3 or 4 bedroom home. The huge flat south-face roof can carry enough Photovoltaic’s to make this a true Zero Energy Home.
MODEL
SP 3648
SQ.FT.
2754 + 1672 bsmt
# BEDROOMS
3-4

This Southern Pines home is in North Carolina.
Stacks Image 22146
    Click to Enlarge
    Southern Pines - South
    Southern Pines - East
    Southern Pines - North
    Southern Pines - West
    Click to Enlarge
    Southern Pines - Main Level
    Southern Pines - Lower Level
    Southern Pines - Lower Level
    Click to Enlarge
    Southern Pines - Southeast View
    SOUTHEAST VIEW
    Southern Pines - Southwest View
    SOUTHWEST VIEW