ENERTIA   HOMES No Fuel? No Power? .......No Problem

Morningstar in Massachusetts
Construction Album - Part 2

Stacks Image 2175
Stacks Image 2178
Stacks Image 2182
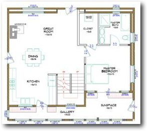
These are the lower (top left), main (top right) and upper level floor plans of this Enertia® Morningstar 3236 home. The 32 tells us that the "footprint" is 32' deep and 36' long (East to West). Note: This house has the optional doubled East wall for the cold Massachussettes climate. The West wall was not doubled in this particular case because much of it is sheltered by the garage.
Stacks Image 2189
Stacks Image 2192
The gable ends begin to rise. The correct angles are cut on the gable ends in the factory, so on the job the progress is quick.
Stacks Image 2198
A dormer in the upstairs bathroom on the North side of the home will add extra headroom in that area. The face of the dormer is part of the heavy timber kit. The sides are framed on site after the SIPS panels that form the roof are in place.
Stacks Image 2205
Stacks Image 2208
Stacks Image 2212
Stacks Image 2215

The ridge beam was set by a rented crane. Next, the rafters will be set to complete the roof framing.

Stacks Image 2221
Stacks Image 2224

The main level will be largely Open Plan.

Stacks Image 2230
Stacks Image 2233
Stacks Image 2237
Stacks Image 2240
There are large windows and doors in the Sunspace wall (top, left) letting light and nature into the main level. On the South side, the Morningstar homes have a wide portion in the Sunspace (top, right) and a narrower "Gallery" (bottom, left and right).
Stacks Image 2246
Stacks Image 2249
Stacks Image 2253
Stacks Image 2256
There is a cathedral ceiling section on the main level. These photos are taken looking up through the stairwell (top, left) and that open portion of the second floor (lower left) to view the Ridge and Rafters, and West Gable. Again, looking up through the main opening you can see the roof system and East Gable (top, right) and the North Dormer (bottom, right).
Stacks Image 2262
Stacks Image 2265
Stacks Image 2269
Stacks Image 2272
These are some details around the house. At the top left is a close-up of some of the finger joints in the gluelam timbers. At the top right is a site-drilled hole in a floor beam for a recessed light fixture. The wide window jambs on the lower left show the thickness of the doubled East wall. And at the bottom left is the an inner corner on the South side of the upper level. This will be capped with vertical wood trim in the finishing stage of construction.
Stacks Image 2278
Stacks Image 2281
Stacks Image 2285
Stacks Image 2288
TNow we're up on the second floor. The North Dormer (top, left) is in the non-envelope section of the house. This will be the location of the upstairs bath.
Stacks Image 2294
Stacks Image 2297
Metal struts connect the inner and outer North walls, give added strength and rigidity to the entire structure. Looking down into the North wall you can see that the struts are inserted after every few rows of timbers.
Stacks Image 2303
Stacks Image 2306

From the second floor there is a good view of the Timberframe joinery that forms the tower on the South wall.

Stacks Image 2312
Stacks Image 2315

Tim and Mike enjoy the views while standing against the Sunspace wall on the upper level of the house.

Stacks Image 2321
Stacks Image 2324
Stacks Image 2328
Stacks Image 2331
The garage on the West end of the home is an optional part of the kit. The walls are solid timber, and the owner will provide trusses for the roof. The photo on the lower right was taken from the large window in the East Gable.
Stacks Image 2337
Stacks Image 2340
Stacks Image 2344
At this point only three rafters need to be set in place for the Enertia® kit to be complete. Come back soon to see the next round of photos from the site!
Stacks Image 2351
Stacks Image 2354
Stacks Image 2358
Meanwhile, room partitions, and electrical, plumbing and masonry are underway inside.
Stacks Image 2365
Stacks Image 2368
Stacks Image 2372
Stacks Image 2375
The house has been stained with a water-based stain that allows the wood to breathe while protecting it from UV discoloration. Windows and doors have been installed in the house, but not yet in the garage.
Top