ENERTIA   HOMES No Fuel? No Power? .......No Problem

AQUARIUS


Aquarius homes have an attached tower, preserving interior space and enabling a walk-out sunspace balcony on the second floor- a solar space for the master bedroom. The stairway wraps around a massive central fireplace with a vaulted ceiling open-to-below. There are two versions: 1940 square feet and 2324 square feet with three to four bedrooms. 1344 or 1536 square feet of recreational space are available in the basements.
MODEL SQ.FT. # BEDROOMS
AQ1-3640 1940 +1344 bsmt 3
AQ2-3844 2324 +1536 bsmt 3-4



This Aquarius 2 is the family home of a farm family in middle Illinois.


Stacks Image 22146
    Click to Enlarge
    Aquarius 2-3844 - South
    Aquarius 2-3844 - East
    Aquarius 2-3844 - North
    Aquarius 2-3844 - West
    Click to Enlarge
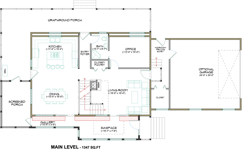
    Aquarius 2-3844 - Main Level
    Aquarius 2-3844 - Lower Level
    Aquarius 2-3844 - Lower Level
    Click to Enlarge
    Aquarius 1-3640 - South
    Aquarius 1-3640 - East
    Aquarius 1-3640 - North
    Aquarius 1-3640 - West
    Click to Enlarge
    Aquarius 1-3640 - Main Level
    Aquarius 1-3640 - Upper Level
    Aquarius 1-3640 - Lower Level