ENERTIA   HOMES No Fuel? No Power? .......No Problem

GENESIS


This was the first Enertia® home design- appropriately named Genesis. It was the beginning of an incredible building concept- using the structure itself to do double-duty as energy storage. This two-story series ranges from 1486 to 3272 square feet, plus 1008 to 2016 square feet of recreational space in the basements. The signature step down South roofline allows clerestories in the master bedroom for additional light and ventilation. Vista fronts are optional an all Genesis series homes.
MODEL SQ.FT. # BEDROOMS
G1-6042 3272 +1134 bsmt 4
G2-3236 1784 + 1152 bsmt 3
G2-3240 1992 + 1280 bsmt 3-4


This Genesis 2 faces the tough winters in northern Wisconsin.

Stacks Image 22146
    Click to Enlarge
    Genesis 2-3240 - South
    Genesis 2-3240 - East
    Genesis 2-3240 - North
    Genesis 2-3240 - West
    Click to Enlarge
    Genesis 2-3240 - Main Level
    Genesis 2-3240 - Lower Level
    Genesis 2-3240 - Lower Level
    Click to Enlarge
    Genesis 2-3236 - South
    Genesis 2-3236 - East
    Genesis 2-3236 - North
    Genesis 2-3236 - West
    Click to Enlarge
    Genesis 2-3236 - Main Level
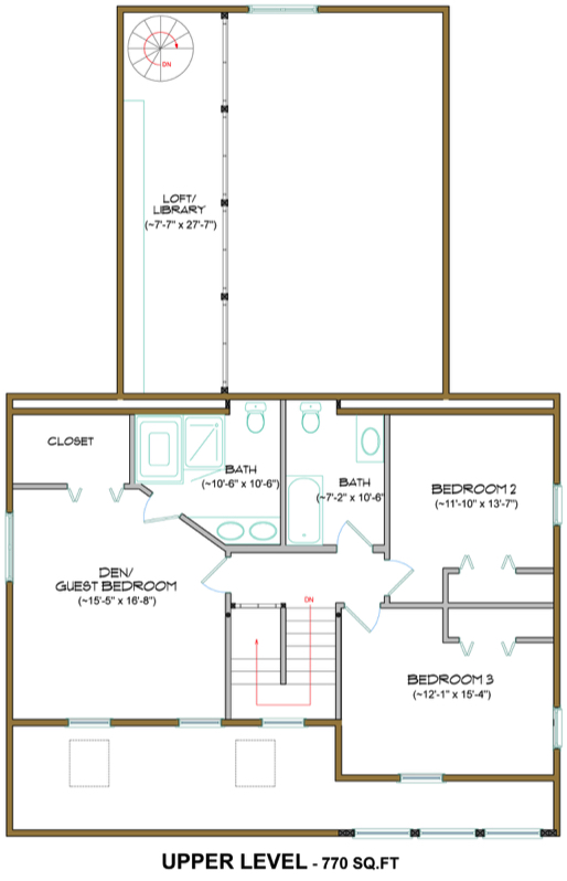
    Genesis 2-3236 - Upper Level
    Genesis 2-3236 - Lower Level
    Genesis 1-6040 - South
    Genesis 1-6040 - East
    Genesis 1-6040 - North
    Genesis 1-6040 - West
    Genesis 1-6040 - Main Level
    Genesis 1-6040 - Upper Level
    Genesis 1-6040 - Lower Level
    Genesis 1-6040 - Southeast
    Genesis 1-6040 - Southwest
    Genesis 1-6040 - Northeast
    Genesis 1-6040 - Northwest
    The G1 is the largest home in the Genesis Series. These are the four elevations of the Genesis 1 as designed. Genesis 1 is similar to Genesis 2, but has a master suite on the main level and a Great Room addition on the North. The Northern Great Room is not part of the convection loop but can be heated by a fireplace insert, or by active solar from panels on an attached garage roof. In the summer, it can be made a part of the convection loop, for cooling, by opening internal windows.