ENERTIA   HOMES No Fuel? No Power? .......No Problem

TERRA

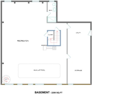
A large single-story on a basement, the Terra is based on a Texas Ranch style. But the twin pitch Hawaiian roof is optimal for solar panels. A bridge in the sunspace looks over the lap pool in the basement.
MODEL              SQ.FT.          # BEDROOMS
Terra 4852     2256+2256 bsmt            3
    
            
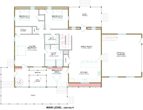
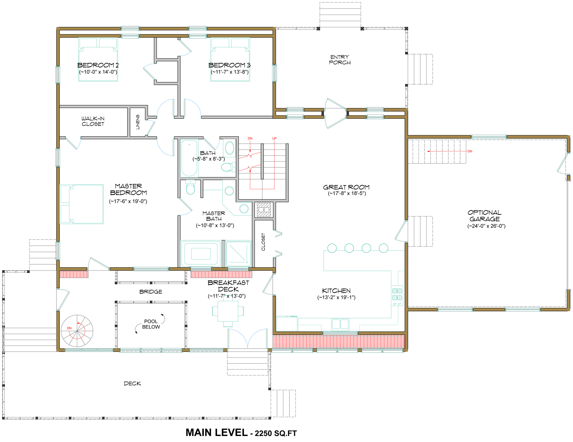
The Terra is designed for one story living, but has a full basement that doubles the useable space available.

Click to Enlarge
zz-terra4852southzz-terra4852east
zz-terra4852northzz-terra4852west
Click to Enlarge
zz-terra4852main

zz-terra4852basement
Click to Enlarge

zz-terra-se6-31 zz-terra-sw6-31

The TERRA was original designed for the Hill Country of Texas and would be
considered a "ranch" style home, with the popular Great Room/Kitchen arrangement. The optional garage shown here intersects the main and basement levels halfway.




zz-terra-ne6-31 zz-terra-nw6-31

TERRA has the dual pitch roof popularized by Hawaiian architect C.W. Dickey. This is the perfect roof for solar - a steep pitch for the winter heating panels, and a shallow pitch for the PV electric panels. The steep "attic" allows for natural cooling with the "Corkscrew" air flow induced by the attic window arrangement.

zz-terra-mlAxon 7-9 zz-terra-llAxon 7-9

The TERRA has 2256 square feet on one level, with 2256 square feet in the basement. TERRA has 3 bedrooms and two baths, with a shower/bathroom in the basement. The original TERRA had a lap pool in the basement, with a unique "bridge" over the pool in the sunspace